Land To Let, Peterborough
4 photos
POA
Kings Dyke, Peterborough, PE7 2PA
Type
Land
Status
Under Offer
Size
0.50 Acres
Key Features
- The site offers secure, perimeter fenced yards with a levelled, hardcore finish and with a section of hard standing in one area
- Access to power
- Access from the newly created A605 bypass road
Property Details
O P E N S T O R A G E
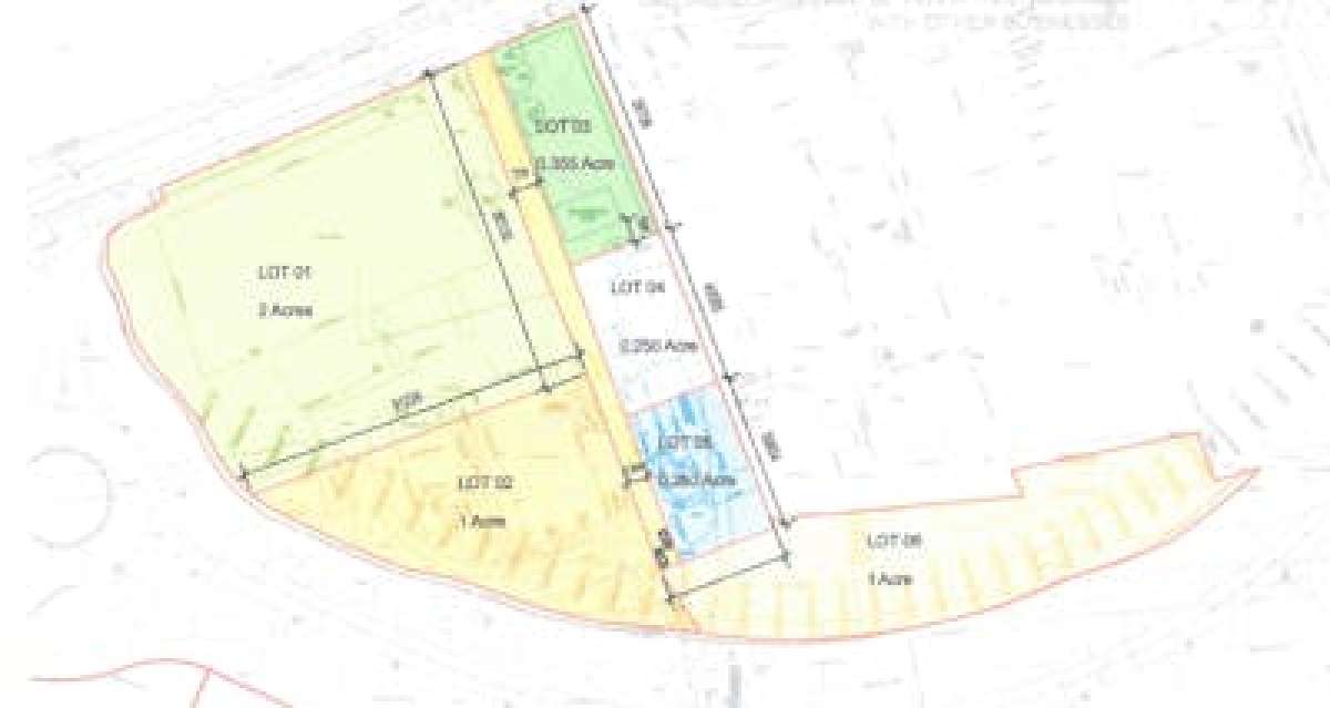
From 0.5 Acre Plots Available Within 5 Acre Site.
The Site
Plot A Comprises B8 Open Storage Land Accessed From The Newly Created A605 Bypass Road.
The Site Offers Secure, Perimeter Fenced Yards With A Leveled, Hardcore Finish With A Section Of Hard Standing In One Area. Access To Power.
From £25,000 Per Annum For 0.5 Acres
From 0.5 Acre Plots Available Within 5 Acre Site.
The Site
Plot A Comprises B8 Open Storage Land Accessed From The Newly Created A605 Bypass Road.
The Site Offers Secure, Perimeter Fenced Yards With A Leveled, Hardcore Finish With A Section Of Hard Standing In One Area. Access To Power.
From £25,000 Per Annum For 0.5 Acres
Location
Tydus RE
View all properties
Make an Enquiry
Tydus RE