Industrial Unit To Let, Portsmouth
2 photos
POA
Mountbatten Business Park, 3 Grove Road, Portsmouth, PO6 1LX
Type
Industrial Unit
Status
Available
Size
9,149 sq ft
Key Features
- Prominent roadside location
- Easy access to A27/A3(M)
- Loading and parking at the front
- Local amenities
Property Details
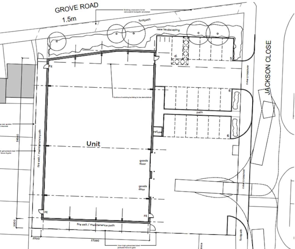
Unit 3 To Comprise Of A New Build Industrial Warehouse Or Trade Counter Unit Of A Steel Portal Frame Under A Pitched Roof With Part Cladding And Part Brickwork Elevations. The Building Will Front Jackson Close And Benefit From Prominence To Grove Road. There Will Be Car Parking (17 Spaces) And A Loading Area To The Front, With Two Full Height Electric Loading Doors. The Internal Space Will Be Open Plan, Offering Wc's And A Disabled Wc Facility.
Location
Vail Williams
View all properties
Make an Enquiry
Vail Williams