Retail/Shop To Let, Market Harborough

Retail/Shop in Market Harborough
Retail/Shop in Market Harborough
Retail/Shop in Market Harborough
POA

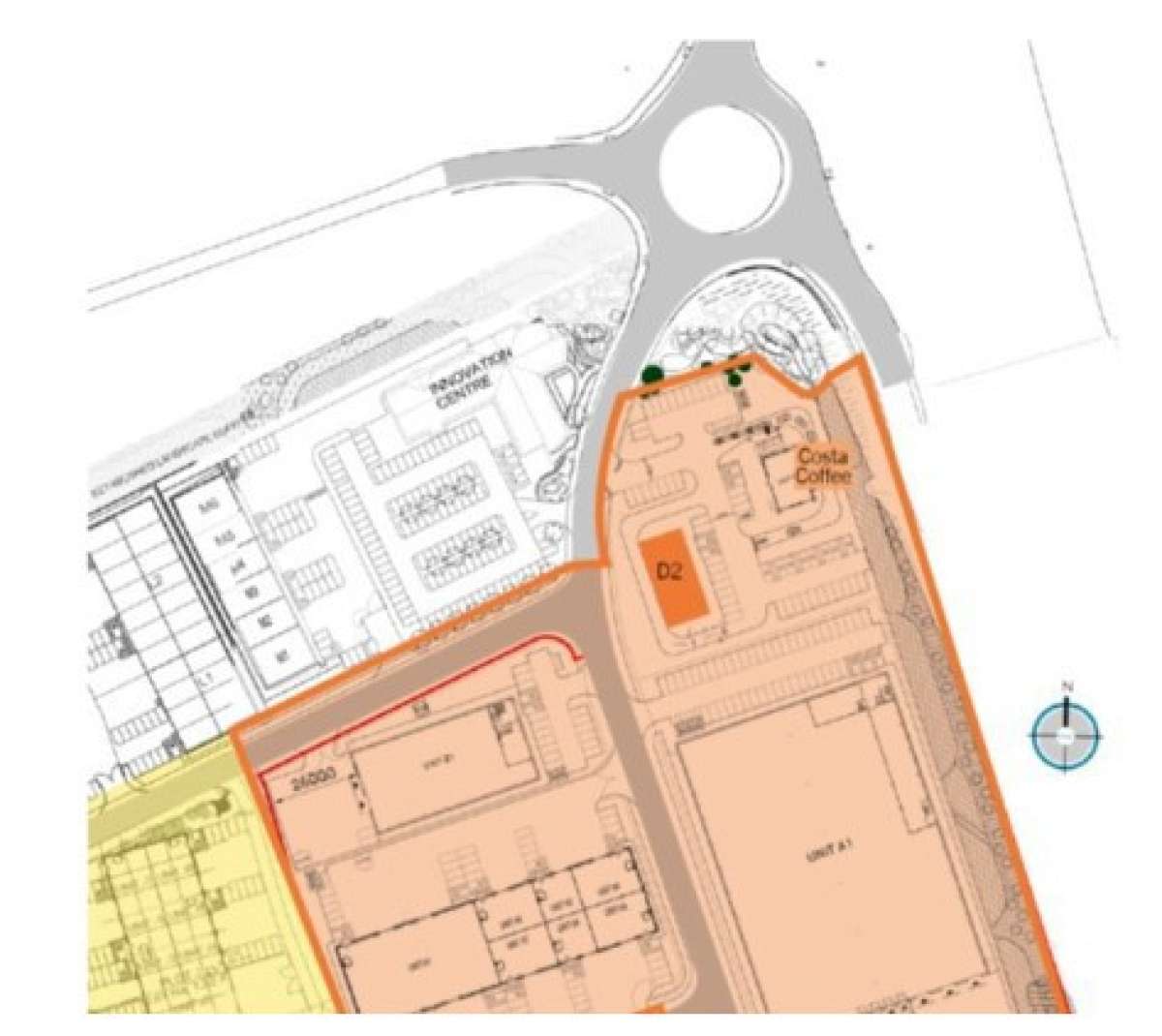
Drive Thru Unit,Harrison Road Off Leicester Road, Market Harborough, LE16 7WB

Type Retail/Shop
Status Available
Size 2,300 sq ft

Key Features

  • Prominent Location
  • To be provided once complete
  • Available on new full repairing and insuring lease terms for a term of years to be agreed

Property Details

New Build Drive Thru Unit Adjacent To Costa Coffee On Established Business Park.

Exact Design And Specification Of The Unit To Be Agreed With The Operator.

The Layout Of The Wider Scheme Has Been Designed And Forms Part Of A Planning Application Reference No 2024/reg3ma/0015/lcc
Eddisons; Kettering
Eddisons; Kettering View all properties
Retail/Shop To Let, Market Harborough
POA

Drive Thru Unit,Harrison Road Off Leicester Road, Market Harborough, LE16 7WB

Retail/Shop · Available · 2,300 sq ft

Property ID: 124655

Send Enquiry
Eddisons; Kettering
Eddisons; Kettering View all properties

Make an Enquiry

Boxpod will only use your details to send an enquiry to the advertiser and prompt a response. By clicking Send Enquiry, you agree to Boxpod's Privacy Policy.

Make an Enquiry

Eddisons; Kettering
Eddisons; Kettering

Boxpod will only use your details to send an enquiry to the advertiser and prompt a response. By clicking Send Enquiry, you agree to Boxpod's Privacy Policy.

Call