Retail/Shop To Let, Market Harborough
3 photos
£5,625 / month
£67,500 pa
15 High Street, Market Harborough, LE16 7NN
Type
Retail/Shop
Status
Available
Size
2,533 sq ft
Key Features
- Attractive building
- Prominent position
- Affluent market town
- Rear access available
Property Details
The property occupies a prominent position on High Street, Market Harborough, an affluent and sought after market town located 15 miles south east of Leicester and 19 miles north of Northampton.
Nearby occupiers include Lakeland, The White Company, Joules, Fatface and Savers. Municipal short term free parking is in the vicinity, with multiple pay and display car parks across the Town.
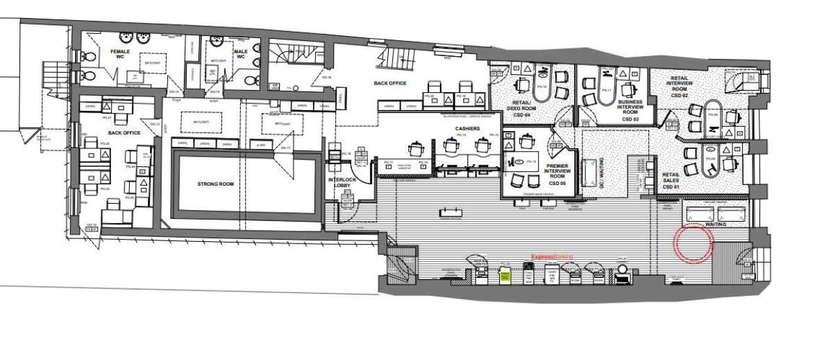
A Ground Floor Former Banking Hall Within A Characteristic Three Storey Property With Attractive Stonework Façade And Vertical Glazing To The Front Elevation. Internally, The Property Is Fitted In Its Majority With Demountable Partitioning, Which Subject To Removal Would Provide A Rectangular Shaped Open Plan Sales Area With Double Height Ceilings. A Former Strong Room, Office And Wcs Are Positioned To The Rear Of The Property. Rear Access Is Available Off School Lane.
Nearby occupiers include Lakeland, The White Company, Joules, Fatface and Savers. Municipal short term free parking is in the vicinity, with multiple pay and display car parks across the Town.
A Ground Floor Former Banking Hall Within A Characteristic Three Storey Property With Attractive Stonework Façade And Vertical Glazing To The Front Elevation. Internally, The Property Is Fitted In Its Majority With Demountable Partitioning, Which Subject To Removal Would Provide A Rectangular Shaped Open Plan Sales Area With Double Height Ceilings. A Former Strong Room, Office And Wcs Are Positioned To The Rear Of The Property. Rear Access Is Available Off School Lane.
Location
Andrew & Ashwell Ltd
View all properties
Make an Enquiry
Andrew & Ashwell Ltd