Retail/Shop To Let, Bingley
4 photos
POA
Bingley Railway Station,Wellington Street, Bingley, BD16 2NA
Type
Retail/Shop
Status
Available
Size
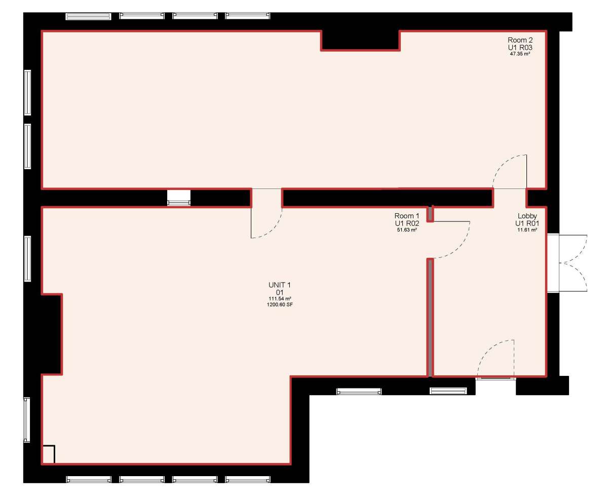
1,190 sq ft
Key Features
- Annual Station Footfall of 938,782
- Regular services to Leeds, Bradford and Skipton
- Situated fronting the station forecourt and car park
- Undergoing refurbishment
- Close to the town centre
- Suitable for retail, catering & real ale bar
Property Details
On Behalf Of Northern, An Opportunity Is Available At The Station Which Comprises A Building Extending To Two Rooms. Access To The Premises Is Via The Door To The Left Of The Station Entrance And Forecourt.
The Premises Have Previously Been Used As A Dance School. Northern Are Inviting Business Proposals For A Real Ale Bar Or Other Business Use.
The Premises Have Previously Been Used As A Dance School. Northern Are Inviting Business Proposals For A Real Ale Bar Or Other Business Use.
Location
LSH-Leeds
View all properties
Make an Enquiry
LSH-Leeds