Retail/Shop To Let, Ipswich
4 photos
£2,917 / month
£35,000 pa
2-4 Upper Brook Street, Ipswich, IP4 1EE
Type
Retail/Shop
Status
Available
Size
1,651 sq ft
Key Features
- Excellent location on Upper Brook Street close to Tavern Street
- Arranged over ground and first floor
- Available for immediate occupation
Property Details
Location:
Ipswich Is One Of East Anglia's Most Important Commercial Centres With A Catchment Population Of About 350,000. There Are Good Road Links To The M25, London And Midlands Via The A12 And A14 Dual Carriageways. London Liverpool Street Is Just Over An Hour Away From Ipswich By Train.
The Property Is Situated On The Western Side Of Upper Brook Street Close To The Junction With Tavern Street Within The Town Centre. Nearby Occupiers Include Costa Coffee, Yorkshire Building Society And Tesco Express.
Description:
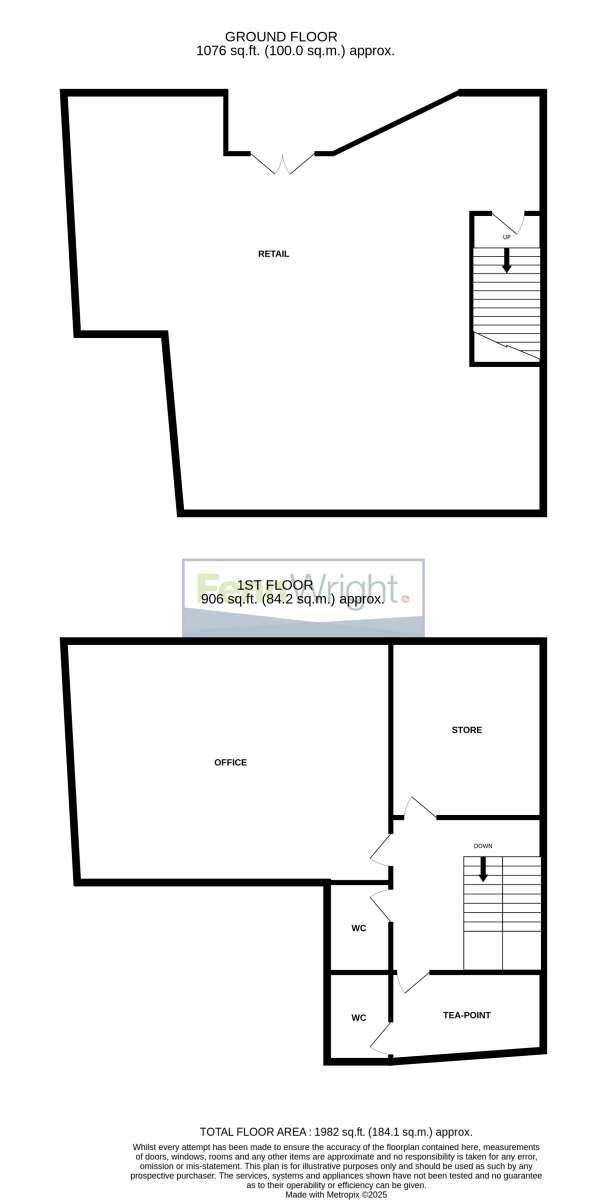
The Property Comprises A Self-contained Double Fronted Retail Unit Arranged Upon Ground And First Floor, Together With Basement. The Ground Floor Provides A Predominantly Open Plan Sales Area. The First Floor Comprises Office, Store, Tea-point And Wcs.
The Specification To The Main Retail Area Includes Suspended Ceilings Incorporating Led Lighting, Air-conditioning, Perimeter Power & Data Points, Mixed Carpet/vinyl Wood Effect Floor Coverings.
The Premises Benefits From A Fully Glazed Retail Frontage.
Accommodation:
[approximate Net Internal Floor Areas]
Ground Floor
Retail Area: 957 Sq Ft [ 88.92 Sq M]
First Floor
Office: 457 Sq Ft [ 42.49 Sq M]
Store: 161 Sq Ft [ 14.99 Sq M]
Tea-point: 75 Sq Ft [ 6.97 Sq M]
Wcs: -- --
Total Net Internal Floor Area: 1,651 Sq Ft [153.39 Sq M]
Wcs: -- --
Total Net Internal Floor Area 952 Sq Ft [ 88.41 Sq M]
Total Net Internal Floor Area: 1,483 Sq Ft [137.77 Sq M]
Business Rates:
According To The Valuation Office Agency Website, The Premises Has A Rateable Value Of £25,750. The Rates Payable (2024/25) Is £12,849.25 Per Annum Based On The Current Ubr For 2024/25 Of £0.499.
All Interested Parties Should Make Their Own Enquires With The Local Rating Authority In Order To Verify Their Rates Liability.
Services:
It Is Understood That The Premises Is Connected To Mains Water, Electricity And Drainage.
We Have Not Tested Any Of The Services And All Interested Parties Should Rely Upon Their Own Enquiries With The Relevant Utility Companies In Connection With The Availability And Capacity Of All Those Serving The Property Including It And Telecommunications.
Planning:
We Understand That The Premises Has Permission For Use Class E.
All Interested Parties Should Make Their Own Enquiries With The Local Planning Authority.
Local Authority:
Ipswich Borough Council, Grafton House, 15-17 Russell Road, Ipswich, Ip1 2de
Tel: 01473 432000
Terms:
The Unit Is Available By Way Of A New Full Repairing And Insuring Business Lease Upon Terms To Be Agreed At An Initial Rent Of £35,000 Per Annum Exclusive.
Vat Position To Be Confirmed.
Legal Costs:
Each Party Is To Be Responsible For Their Own Legal Costs.
Ipswich Is One Of East Anglia's Most Important Commercial Centres With A Catchment Population Of About 350,000. There Are Good Road Links To The M25, London And Midlands Via The A12 And A14 Dual Carriageways. London Liverpool Street Is Just Over An Hour Away From Ipswich By Train.
The Property Is Situated On The Western Side Of Upper Brook Street Close To The Junction With Tavern Street Within The Town Centre. Nearby Occupiers Include Costa Coffee, Yorkshire Building Society And Tesco Express.
Description:
The Property Comprises A Self-contained Double Fronted Retail Unit Arranged Upon Ground And First Floor, Together With Basement. The Ground Floor Provides A Predominantly Open Plan Sales Area. The First Floor Comprises Office, Store, Tea-point And Wcs.
The Specification To The Main Retail Area Includes Suspended Ceilings Incorporating Led Lighting, Air-conditioning, Perimeter Power & Data Points, Mixed Carpet/vinyl Wood Effect Floor Coverings.
The Premises Benefits From A Fully Glazed Retail Frontage.
Accommodation:
[approximate Net Internal Floor Areas]
Ground Floor
Retail Area: 957 Sq Ft [ 88.92 Sq M]
First Floor
Office: 457 Sq Ft [ 42.49 Sq M]
Store: 161 Sq Ft [ 14.99 Sq M]
Tea-point: 75 Sq Ft [ 6.97 Sq M]
Wcs: -- --
Total Net Internal Floor Area: 1,651 Sq Ft [153.39 Sq M]
Wcs: -- --
Total Net Internal Floor Area 952 Sq Ft [ 88.41 Sq M]
Total Net Internal Floor Area: 1,483 Sq Ft [137.77 Sq M]
Business Rates:
According To The Valuation Office Agency Website, The Premises Has A Rateable Value Of £25,750. The Rates Payable (2024/25) Is £12,849.25 Per Annum Based On The Current Ubr For 2024/25 Of £0.499.
All Interested Parties Should Make Their Own Enquires With The Local Rating Authority In Order To Verify Their Rates Liability.
Services:
It Is Understood That The Premises Is Connected To Mains Water, Electricity And Drainage.
We Have Not Tested Any Of The Services And All Interested Parties Should Rely Upon Their Own Enquiries With The Relevant Utility Companies In Connection With The Availability And Capacity Of All Those Serving The Property Including It And Telecommunications.
Planning:
We Understand That The Premises Has Permission For Use Class E.
All Interested Parties Should Make Their Own Enquiries With The Local Planning Authority.
Local Authority:
Ipswich Borough Council, Grafton House, 15-17 Russell Road, Ipswich, Ip1 2de
Tel: 01473 432000
Terms:
The Unit Is Available By Way Of A New Full Repairing And Insuring Business Lease Upon Terms To Be Agreed At An Initial Rent Of £35,000 Per Annum Exclusive.
Vat Position To Be Confirmed.
Legal Costs:
Each Party Is To Be Responsible For Their Own Legal Costs.
Location
Fenn Wright LLP
View all properties
Make an Enquiry
Fenn Wright LLP