Office For Sale, Fareham

Office in Fareham
Office in Fareham
Office in Fareham
£350,000 Freehold

Office,Trampers Lane, Fareham, PO17 6BZ

Type Office
Status Available
Size 2,515 sq ft

Key Features

  • For Sale
  • Development Opportunity
  • Planning Consent Granted
  • Two Storey office Building

Property Details

The site is located within North Boarhunt, a village situated approximately 7 and a half miles north west of Portsmouth a major regional port, a hub for commercial activity and forms part of the ever-expanding south coast conurbation.

The site is positioned on Trampers Lane, running in a north / south direction with the local area characterized by views out over open county side and woodland. Nearby properties include residential dwellings and Boarhunt Parish Hall.

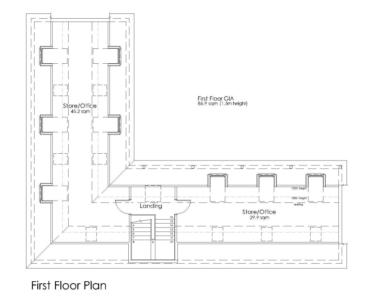
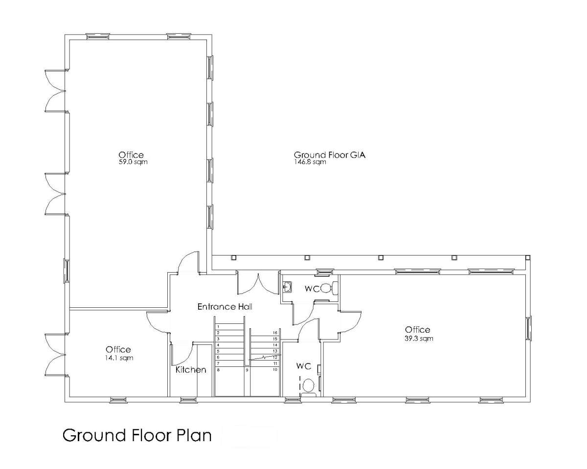
The Site Is Generally Level And Is Predominately Laid To Shingle And Grass With Mature Vegetation Around The Site. Please Refer To The Brochure For Plans.

The Site Is Located Within North Boarhunt, A Village Situated Approximately 7 And A Half Miles North West Of Portsmouth A Major Regional Port, A Hub For Commercial Activity And Forms Part Of The Ever-expanding South Coast Conurbation.

The Site Is Positioned On Trampers Lane, Running In A North / South Direction With The Local Area Characterized By Views Out Over Open County Side And Woodland. Nearby Properties Include Residential Dwellings And Boarhunt Parish Hall.

For Sale

Development Opportunity

Planning Consent Granted

Two Storey Office Building
Eddisons; Fareham
Eddisons; Fareham View all properties
Office For Sale, Fareham
£350,000 Freehold

Office,Trampers Lane, Fareham, PO17 6BZ

Office · Available · 2,515 sq ft

Property ID: 141557

Send Enquiry
Eddisons; Fareham
Eddisons; Fareham View all properties

Make an Enquiry

Boxpod will only use your details to send an enquiry to the advertiser and prompt a response. By clicking Send Enquiry, you agree to Boxpod's Privacy Policy.

Make an Enquiry

Eddisons; Fareham
Eddisons; Fareham

Boxpod will only use your details to send an enquiry to the advertiser and prompt a response. By clicking Send Enquiry, you agree to Boxpod's Privacy Policy.

Call