Back to results

Retail/Shop To Let, Dundee

Retail/Shop in Dundee
Retail/Shop in Dundee
Retail/Shop in Dundee
POA

Gym/Leisure Proposal,80 Nethergate, Dundee, DD1 4ER

Type Retail/Shop
Status Available
Size 25,251 sq ft

Property Details

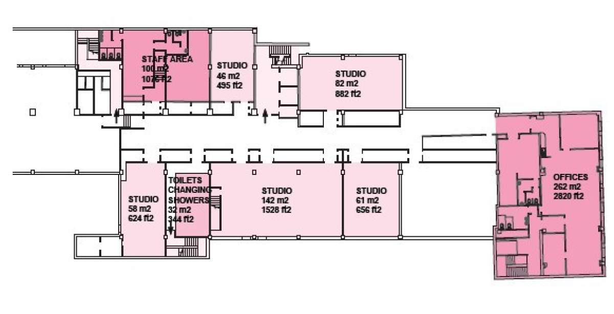
Indicative Proposals Have Been Drawn Up For The Current Mall Office Space To Be Re-purposed Into A Leisure Or Gym Use.

This Would Be Subject To Planning But Indicative Floorplans And Sizes Are Provided.
LSH-Edinburgh
LSH-Edinburgh View all properties
Retail/Shop To Let, Dundee
POA

Gym/Leisure Proposal,80 Nethergate, Dundee, DD1 4ER

Retail/Shop · Available · 25,251 sq ft

Property ID: 141633

Send Enquiry
LSH-Edinburgh
LSH-Edinburgh View all properties

Make an Enquiry

Boxpod will only use your details to send an enquiry to the advertiser and prompt a response. By clicking Send Enquiry, you agree to Boxpod's Privacy Policy.

Make an Enquiry

LSH-Edinburgh
LSH-Edinburgh

Boxpod will only use your details to send an enquiry to the advertiser and prompt a response. By clicking Send Enquiry, you agree to Boxpod's Privacy Policy.

Call