Back to results

Industrial Unit To Let Or For Sale, Wrexham

Industrial Unit in Wrexham
Industrial Unit in Wrexham
Industrial Unit in Wrexham
Industrial Unit in Wrexham
£5,273 / month
£63,280 pa

Queensway, Wrexham, LL13 8YR

Type Industrial Unit
Status Available
Size 15,820 - 43,420 sq ft

Key Features

  • Detached Industrial Warehouse House
  • Large Services Yards
  • Excellent Transport Links

Property Details

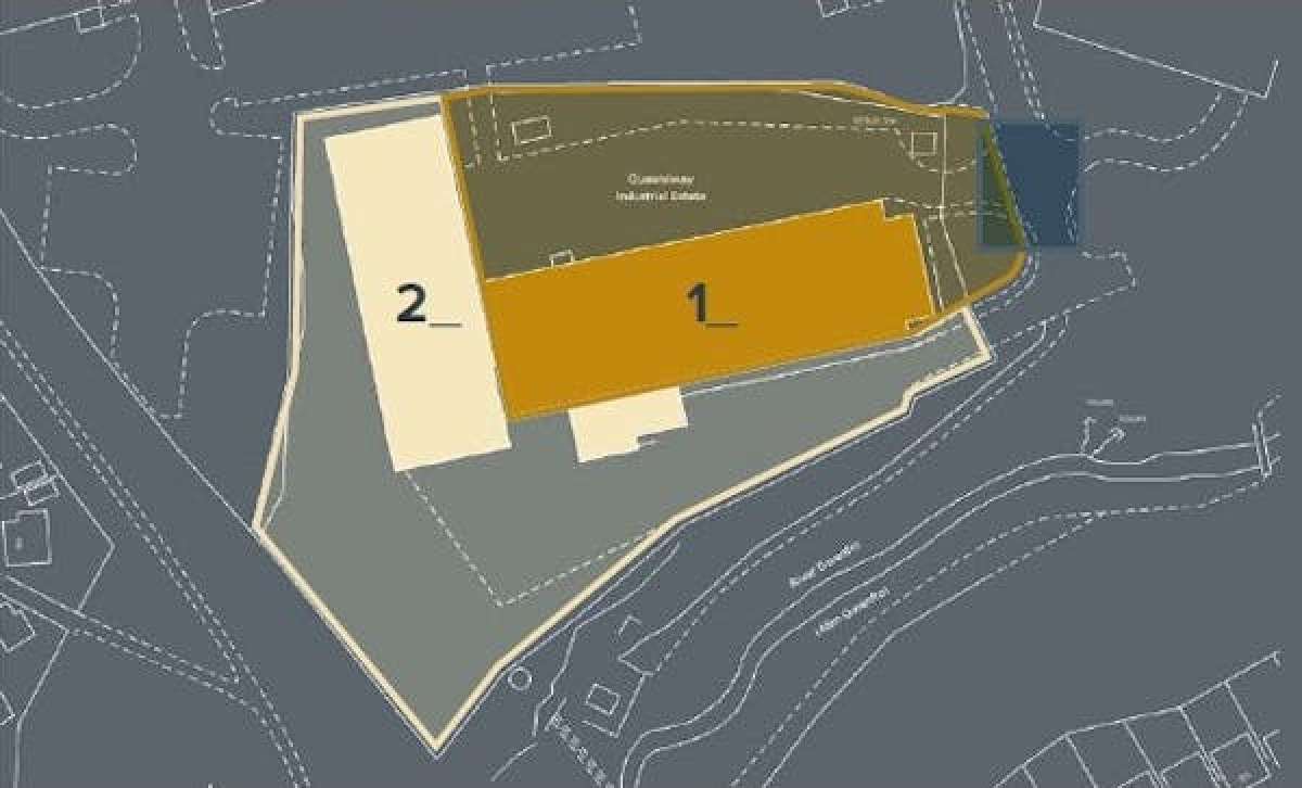
The Property Comprises A Detached Industrial / Warehouse Building On A Large Self Contained Site, Which Can Be Made Available As Two Separate Units Or As A Whole.

The Buildings Are Of Steel Frame Construction With Internal Blockwork And External Full Height Profiled Metal Cladding.

The Industrial / Warehouse Space Benefits From Good Height Clearance Under A Pitched Roof With Translucent Rooflights.

The Office Accommodation Benefits From A Flat Felt Roof.

The Property Is Served By Two Separate Large And Secure Service Yards, One To Each Side Of The Buildings. Both Service Yards Are Generally Concrete Surfaced To A Good Standard.

The Site Is Secured With Palisade Fencing And Gates.

Large Secure Service Yards.
Large Electric, Gas And Water Supplies Available.
Ground And First Floor Office / Amenity Space.
Town Centre Fringe.
35% Site Coverage.
Opportunity To Purchase.
Available As A Whole Unit Or As Two Separate Self-contained Units.
Fisher German LLP- Manchester
Fisher German LLP- Manchester View all properties
Industrial Unit To Let Or For Sale, Wrexham
£5,273 / month
£63,280 pa

Queensway, Wrexham, LL13 8YR

Industrial Unit · Available · 15,820 - 43,420 sq ft

Property ID: 143528

Send Enquiry
Fisher German LLP- Manchester
Fisher German LLP- Manchester View all properties

Make an Enquiry

Boxpod will only use your details to send an enquiry to the advertiser and prompt a response. By clicking Send Enquiry, you agree to Boxpod's Privacy Policy.

Make an Enquiry

Fisher German LLP- Manchester
Fisher German LLP- Manchester

Boxpod will only use your details to send an enquiry to the advertiser and prompt a response. By clicking Send Enquiry, you agree to Boxpod's Privacy Policy.

Call