Office To Let, Grantham
4 photos
£667 / month
£8,000 pa
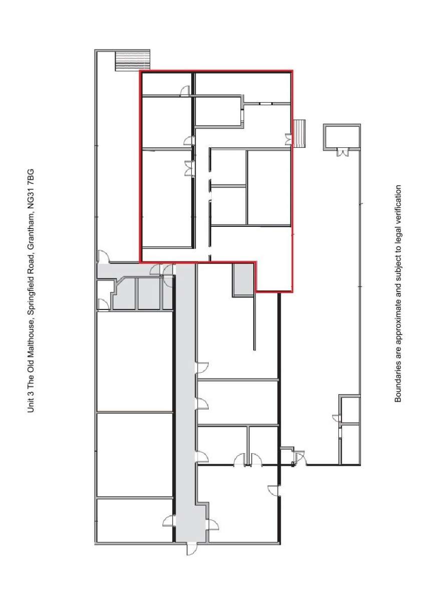
Unit 3,Springfield Road, Grantham, NG31 7BG
Type
Office
Status
Available
Size
2,174 sq ft
Key Features
- On-site shared communal car parking.
- New internal repairing and insuring lease available on terms to be agreed.
- Unit currently divided to create an Entrance Hallway
- 8 Offices/Stores & Kitchen
- Shared WC Facilities.
- NIA Approx. 202 sqm (2,178 sqft)
Property Details
A Lower Ground Floor Office/Storage Unit with predominantly painted plaster walls, painted plaster ceilings, strip fluorescent lighting and part carpeted, part vinyl and part painted concrete floors.
The majority of the Unit has been divided by stud-wall partitioning to create an Entrance Hallway, 8 Offices/Stores and a Kitchen. An ingoing tenant will have use of shared WC facilities on the Ground Floor and 1 non demised car parking space within the communal Car Park on site.
On-site Shared Communal Car Parking.
New Internal Repairing And Insuring Lease Available On Terms To Be Agreed.
Unit Currently Divided To Create An Entrance Hallway
8 Offices/stores & Kitchen
Lower Ground Floor Office/storage Unit - To Let
Unit 3 The Old Malthouse, Springfield Road, Grantham, Ng31 7bg
£8,000 P.a.x. Leasehold| 236.7 Sq.m (2,548 Sq.ft)
Lower Ground Floor Office/storage Unit - To Let
Unit 3 The Old Malthouse, Springfield Road, Grantham, Ng31 7bg
£8,000 P.a.x. Leasehold| 236.7 Sq.m (2,548 Sq.ft)
Detailed Description
A Lower Ground Floor Office/storage Unit With Predominantly Painted Plaster Walls, Painted Plaster Ceilings, Strip Fluorescent Lighting And Part Carpeted, Part Vinyl And Part Painted Concrete Floors.
The Majority Of The Unit Has Been Divided By Stud-wall Partitioning To Create An Entrance Hallway, 8 Offices/stores And A Kitchen. an Ingoing Tenant Will Have Use Of Shared Wc Facilities On The Ground Floor And 1 Non Demised Car Parking Space Within The Communal Car Park On Site.
Location
Grantham Is An Established Market Town In South Lincolnshire Being Approximately 23 Miles East Of Nottingham And 25 Miles South Of Lincoln And Having A Residential Population Of Approximately 38,000 People With A Large Catchment Area. The A1 Runs Immediately To The West Of The Town Providing Excellent Road Communications And The Town Also Benefits From A Main Line Rail Connection To London Kings Cross With A Journey Time Of Approximately 75 Minutes.
The Premises Are Situated At The Old Malthouse On Springfield Road. The Old Malthouse Is In An Established Commercial Location With A Number Of Offices, Stores And Workshops On Site. Springfield Road Is Primarily A Residential Area But Provides Good Access To Both The A607 And The A52.
Shared Wc Facilities.
Nia Approx. 202 Sqm (2,178 Sqft)
The majority of the Unit has been divided by stud-wall partitioning to create an Entrance Hallway, 8 Offices/Stores and a Kitchen. An ingoing tenant will have use of shared WC facilities on the Ground Floor and 1 non demised car parking space within the communal Car Park on site.
On-site Shared Communal Car Parking.
New Internal Repairing And Insuring Lease Available On Terms To Be Agreed.
Unit Currently Divided To Create An Entrance Hallway
8 Offices/stores & Kitchen
Lower Ground Floor Office/storage Unit - To Let
Unit 3 The Old Malthouse, Springfield Road, Grantham, Ng31 7bg
£8,000 P.a.x. Leasehold| 236.7 Sq.m (2,548 Sq.ft)
Lower Ground Floor Office/storage Unit - To Let
Unit 3 The Old Malthouse, Springfield Road, Grantham, Ng31 7bg
£8,000 P.a.x. Leasehold| 236.7 Sq.m (2,548 Sq.ft)
Detailed Description
A Lower Ground Floor Office/storage Unit With Predominantly Painted Plaster Walls, Painted Plaster Ceilings, Strip Fluorescent Lighting And Part Carpeted, Part Vinyl And Part Painted Concrete Floors.
The Majority Of The Unit Has Been Divided By Stud-wall Partitioning To Create An Entrance Hallway, 8 Offices/stores And A Kitchen. an Ingoing Tenant Will Have Use Of Shared Wc Facilities On The Ground Floor And 1 Non Demised Car Parking Space Within The Communal Car Park On Site.
Location
Grantham Is An Established Market Town In South Lincolnshire Being Approximately 23 Miles East Of Nottingham And 25 Miles South Of Lincoln And Having A Residential Population Of Approximately 38,000 People With A Large Catchment Area. The A1 Runs Immediately To The West Of The Town Providing Excellent Road Communications And The Town Also Benefits From A Main Line Rail Connection To London Kings Cross With A Journey Time Of Approximately 75 Minutes.
The Premises Are Situated At The Old Malthouse On Springfield Road. The Old Malthouse Is In An Established Commercial Location With A Number Of Offices, Stores And Workshops On Site. Springfield Road Is Primarily A Residential Area But Provides Good Access To Both The A607 And The A52.
Shared Wc Facilities.
Nia Approx. 202 Sqm (2,178 Sqft)
Location
Brown & Co
View all properties
Make an Enquiry
Brown & Co