Retail/Shop To Let, Bingley
4 photos
POA
Bingley Railway Station,Wellington Street, Bingley, BD16 2NA
Type
Retail/Shop
Status
Available
Size
788 sq ft
Key Features
- Annual Station Footfall of 938,782.
- Regular services to Leeds, Bradford and Skipton
- Situated fronting the station forecourt and car park
- Undergoing refurbishment
- Close to the town centre
- Suitable for retail, catering, licensed bar
Property Details
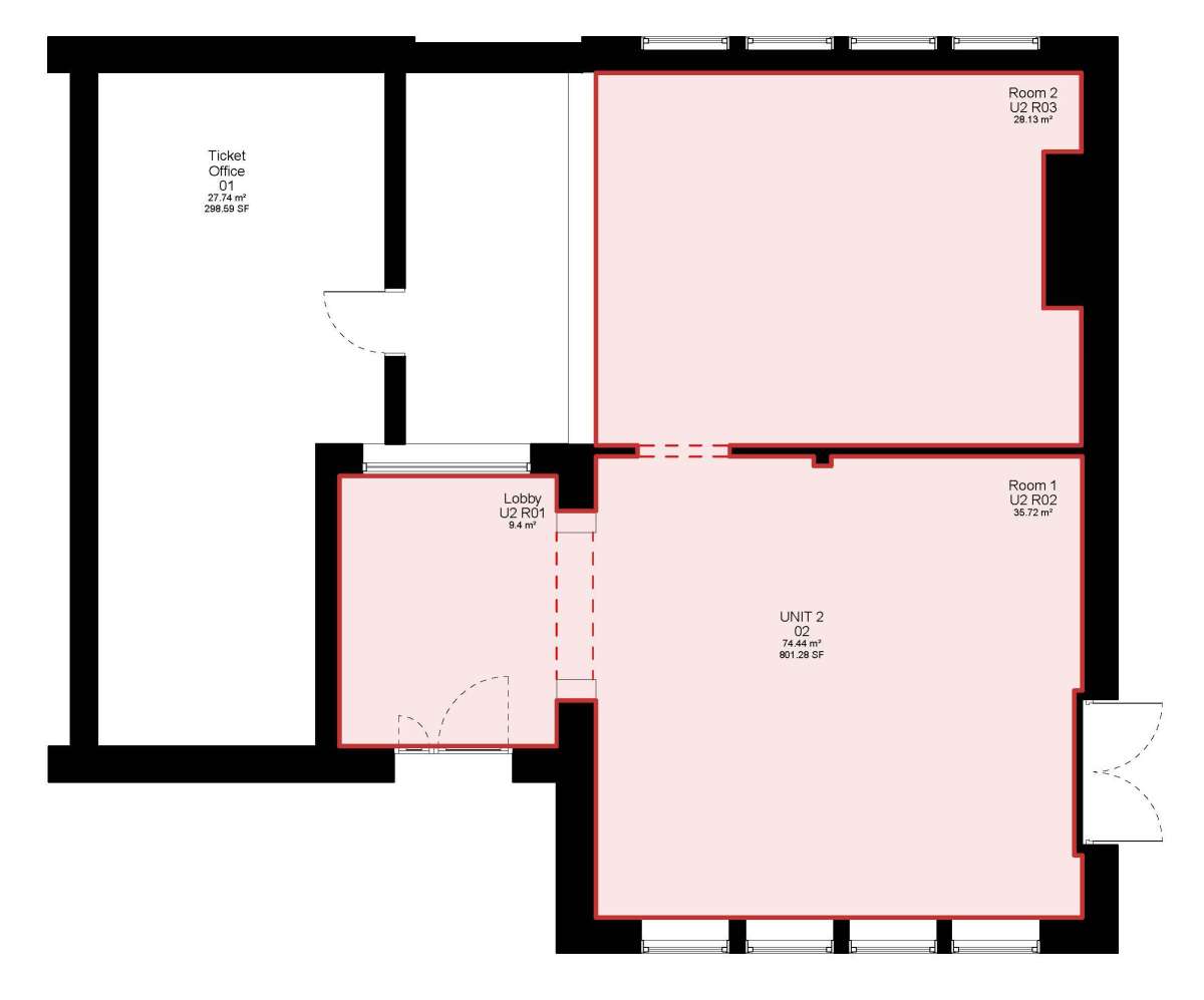
On Behalf Of Northern, An Opportunity Exists At Bingley Station Comprising A Single Storey Stone Building Extending To Three Rooms. Access Is Gained Via A Double Door At The Front Of The Main Station Building.
The Premises Have Previously Been Used For The Sale And Display Of Retail Goods. Northern Are Inviting Business Proposals For A Coffee Shop, Catering, Licensed Bar Or Other Business Use.
The Premises Have Previously Been Used For The Sale And Display Of Retail Goods. Northern Are Inviting Business Proposals For A Coffee Shop, Catering, Licensed Bar Or Other Business Use.
Location
LSH-Leeds
View all properties
Make an Enquiry
LSH-Leeds