Office To Let, Oakham
4 photos
£250 / month
£3,000 pa
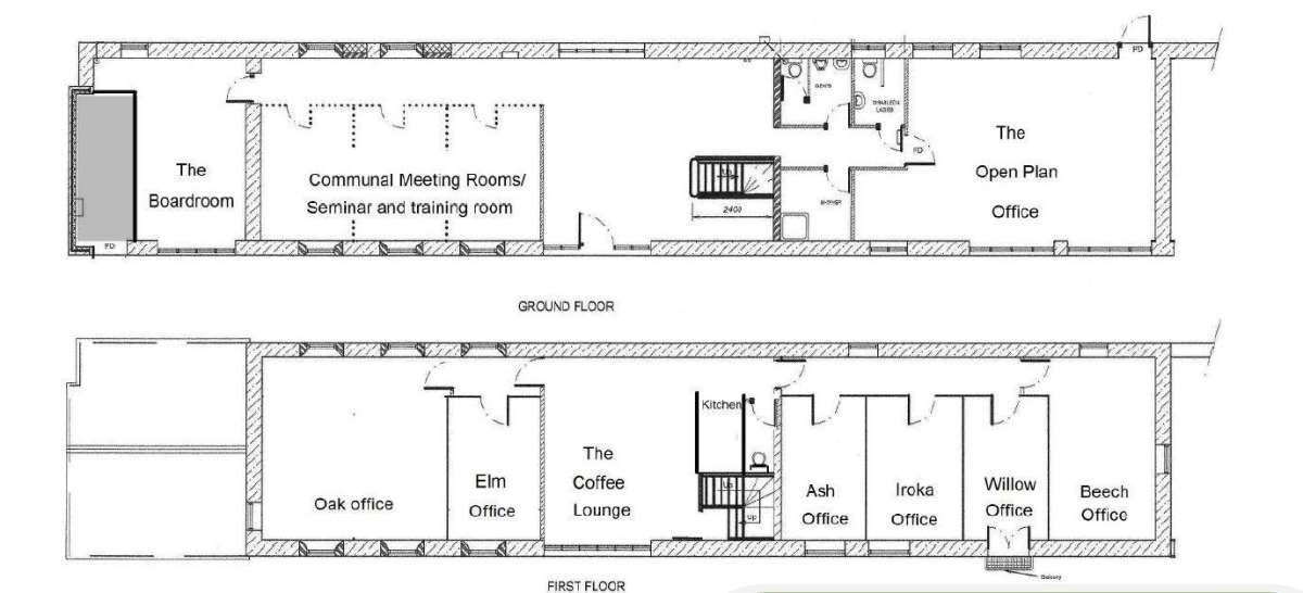
Iroka Office Seaton Grange,Grange Lane, Oakham, LE15 9HT
Type
Office
Status
Available
Size
119 sq ft
Key Features
- Rural Business Centre
- Incentives avaliable
- Heating, electric and broadband included.
- Flexible Lease Terms
- Meeting Room facility
- Wi-Fi, data cabling and telecoms
- 1.5 miles off the A47
- SAT NAV: LE15 9HT
Property Details
Iroka office is a first floor suite set within a converted iron stone barn which enjoys panoramic views over open countryside and landscaped garden. Located in the Rutland village of Seaton with easy access to the road network A43, A47 and A1 and the nearby towns of Oakham, Uppingham and Stamford.
Description
Seaton Grange Offices Are Set Within A Converted Stone Built Barn, Constructed And Maintained To A Very High Specification. The Offices Are Arranged Over Two Floors And Benefit From Perimeter Trunking, Cat Ii Lighting, Feature Wall Lighting, Shower Facilities, Attractive Reception Area, Use Of A Communal Kitchen And Meeting Room Space. Heating Is Provided To Seaton Grange Via Ground Source Heat Pump. Car Parking Is Also Also Available In Close Proximity To The Property With An Attractive Lunch Time Seating Area Ideal For The Summer Months.
Location
Iroka Office Is A First Floor Suite Set Within A Converted Iron Stone Barn Which Enjoys Panoramic Views Over Open Countryside And Landscaped Garden. Located In The Rutland Village Of Seaton With Easy Access To The Road Network A43, A47 And A1 And The Nearby Towns Of Oakham, Uppingham And Stamford.
Accommodation
The Office Has Been Measured In Accordance With The Rics Code Of Measuring Practice On A Net Internal Area (nia) Basis And Measures 119 Sq. Ft. (11.6 Sq. M)
Each Party To Bear Their Own Legal Costs.
Epc
The Seaton Grange Office Building Has An Epc Rating Of B (44). A Copy Of The Certificate Is Available Upon Request.
Description
Seaton Grange Offices Are Set Within A Converted Stone Built Barn, Constructed And Maintained To A Very High Specification. The Offices Are Arranged Over Two Floors And Benefit From Perimeter Trunking, Cat Ii Lighting, Feature Wall Lighting, Shower Facilities, Attractive Reception Area, Use Of A Communal Kitchen And Meeting Room Space. Heating Is Provided To Seaton Grange Via Ground Source Heat Pump. Car Parking Is Also Also Available In Close Proximity To The Property With An Attractive Lunch Time Seating Area Ideal For The Summer Months.
Location
Iroka Office Is A First Floor Suite Set Within A Converted Iron Stone Barn Which Enjoys Panoramic Views Over Open Countryside And Landscaped Garden. Located In The Rutland Village Of Seaton With Easy Access To The Road Network A43, A47 And A1 And The Nearby Towns Of Oakham, Uppingham And Stamford.
Accommodation
The Office Has Been Measured In Accordance With The Rics Code Of Measuring Practice On A Net Internal Area (nia) Basis And Measures 119 Sq. Ft. (11.6 Sq. M)
Each Party To Bear Their Own Legal Costs.
Epc
The Seaton Grange Office Building Has An Epc Rating Of B (44). A Copy Of The Certificate Is Available Upon Request.
Location
Wells McFarlane
View all properties
Make an Enquiry
Wells McFarlane