Industrial Unit To Let, Perth
4 photos
POA
Arran Place, Perth, PH1 3DU
Type
Industrial Unit
Status
Available
Size
1,076 - 1,615 sq ft
Key Features
- Modern and well appointed industrial units
- Established industrial location
- Benefits from 3-phase electricity
- 2 Acre site
- Comprises a total of 22 industrial units
- Constructed to a high specification
- All normal services
- including WCs with disabled access
Property Details
The city of Perth has a resident population of approximately 46,000 with the population of the surrounding catchment area estimated to be in the region of 130,000. Perth is situated
approximately 20 miles west of Dundee, 40 miles north of Edinburgh and 60 miles northeast of Glasgow.
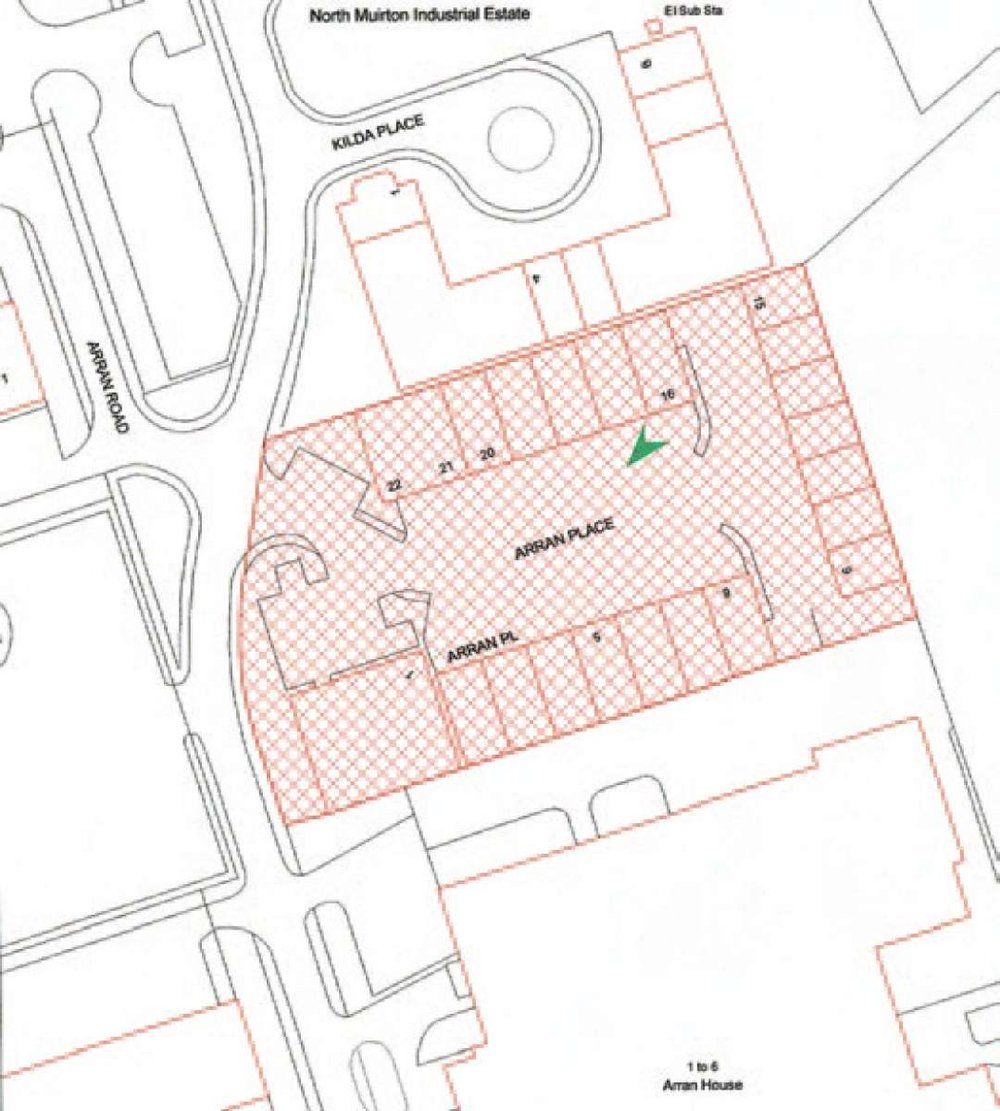
Arran Place lies within an established industrial area situated on the northern periphery of the town, benefiting from easy access to the A9 trunk road via the nearby Inveralmond roundabout.
Access to each unit is via a manually operated roller door which is approximately 9 ft (2.75 m) in height. The lease of each unit includes access/use of communal parking and operational space.
The Arran Place Development Lies On A 2 Acre Site Situated Off Arran Road And Comprises A Total Of 22 Industrial Units Of Various Sizes Ranging From From 150 Sq M (1615 Sq Ft) - 600 Sq M (6460 Sq Ft). The Units Are Constructed To A High Specification, Are Insulated And Provide All Normal Services, Including Wcs With Disabled Access.
Mains Electricity, Gas And Water Supplies Are Laid Onto The Units In Addition To Telephone Lines. Each Unit Has The Benefit Of A Gas Fired Warm Air Heating System.
The City Of Perth Has A Resident Population Of Approximately 46,000 With The Population Of The Surrounding Catchment Area Estimated To Be In The Region Of 130,000.
Perth Is Situated Approximately 20 Miles West Of Dundee, 40 Miles North Of Edinburgh And 60 Miles Northeast Of Glasgow. Arran Place Lies Within An Established Industrial Area Situated On The Northern Periphery Of The Town, Benefiting From Easy Access To The A9 Trunk Road Via The Nearby Inveralmond Roundabout.
approximately 20 miles west of Dundee, 40 miles north of Edinburgh and 60 miles northeast of Glasgow.
Arran Place lies within an established industrial area situated on the northern periphery of the town, benefiting from easy access to the A9 trunk road via the nearby Inveralmond roundabout.
Access to each unit is via a manually operated roller door which is approximately 9 ft (2.75 m) in height. The lease of each unit includes access/use of communal parking and operational space.
The Arran Place Development Lies On A 2 Acre Site Situated Off Arran Road And Comprises A Total Of 22 Industrial Units Of Various Sizes Ranging From From 150 Sq M (1615 Sq Ft) - 600 Sq M (6460 Sq Ft). The Units Are Constructed To A High Specification, Are Insulated And Provide All Normal Services, Including Wcs With Disabled Access.
Mains Electricity, Gas And Water Supplies Are Laid Onto The Units In Addition To Telephone Lines. Each Unit Has The Benefit Of A Gas Fired Warm Air Heating System.
The City Of Perth Has A Resident Population Of Approximately 46,000 With The Population Of The Surrounding Catchment Area Estimated To Be In The Region Of 130,000.
Perth Is Situated Approximately 20 Miles West Of Dundee, 40 Miles North Of Edinburgh And 60 Miles Northeast Of Glasgow. Arran Place Lies Within An Established Industrial Area Situated On The Northern Periphery Of The Town, Benefiting From Easy Access To The A9 Trunk Road Via The Nearby Inveralmond Roundabout.
Location
Graham & Sibbald-Perth
View all properties
Make an Enquiry
Graham & Sibbald-Perth