Back to results

Retail/Shop To Let, Aberdeen

Retail/Shop in Aberdeen
Retail/Shop in Aberdeen
POA

Units 14 & 15 Barratt Trading Estate,Denmore Road, Aberdeen, AB23 8JW

Type Retail/Shop
Status Available
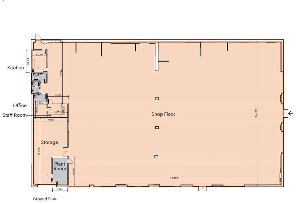
Size 17,429 sq ft

Key Features

  • Denmore Road Frontage
  • Toolstation and Screwfix located opposite
  • Gross Internal Area: 1,629.19 Sq. m (17,429 Sq. ft)
  • Potential to be split
  • Established industrial location, approximately 4 miles north of Aberdeen City Centre and with close proximity to the AWPR.

Property Details

The property is located in the Barratt Trading Estate fronting Denmore Road within the popular and established Bridge of Don Industrial Estate situated some 4 miles north of Aberdeen city centre. Major occupiers established within the Estate include Sterling Furniture, Sparrows Offshore, Fugro, B&Q and Marks & Spencer.

The Property Comprises As Single Storey Building Of Steel Portal Frame Construction Infilled With Concrete Block Dado Wall And Clad Above With Flat Panels. Generous Car Parking And Loading / Unloading Facilities Are Provided Adjacent To The Unit.
Graham & Sibbald-Aberdeen
Graham & Sibbald-Aberdeen View all properties
Retail/Shop To Let, Aberdeen
POA

Units 14 & 15 Barratt Trading Estate,Denmore Road, Aberdeen, AB23 8JW

Retail/Shop · Available · 17,429 sq ft

Property ID: 96922

Send Enquiry
Graham & Sibbald-Aberdeen
Graham & Sibbald-Aberdeen View all properties

Make an Enquiry

Boxpod will only use your details to send an enquiry to the advertiser and prompt a response. By clicking Send Enquiry, you agree to Boxpod's Privacy Policy.

Make an Enquiry

Graham & Sibbald-Aberdeen
Graham & Sibbald-Aberdeen

Boxpod will only use your details to send an enquiry to the advertiser and prompt a response. By clicking Send Enquiry, you agree to Boxpod's Privacy Policy.

Call